Schippersschool,
Rotterdam
Voor de gemeente Rotterdam verkenden we de mogelijkheden voor royale appartementen in de voormalige Schippersschool in Charlois, Rotterdam.

“Met de opdracht voor een haalbaarheidsstudie neemt de gemeente als eigenaar van het gebouw haar verantwoordelijkheid hoe er doordacht om kan worden gegaan met cultuurhistorisch erfgoed.”
Aan de Grondherenstraat in Charlois, Rotterdam-Zuid staat de voormalige Schippersschool. Het bakstenen gebouw stamt uit 1915. Het kenmerkt zich door een eenvoudig hoofdvolume en een heldere, symmetrische plattegrond. Aan de Grondherenstraat presenteert het gebouw zich met een gesloten gevel en een markante, royale kap. De kapconstructie is groots, waardoor een enorme ruimtelijkheid schuilt tussen de houten spanten.
De gemeente Rotterdam wil in de komende jaren tien procent van de (nieuwbouw)woningen door zelfbouw realiseren middels de verkoop van vrije kavels en groepskavels, maar ook door de verkoop van voormalig maatschappelijk vastgoed zoals scholen aan zelfbouwgroepen. Voor de gemeente onderzochten we daarom of de Schippersschool geschikt gemaakt kan worden voor (collectief) particuliere bewoning. Daarbij hebben we rekening houden met de bescherming als toekomstig gemeentelijk monument.
De Schippersschool als school
- Bouwtekening uit 1915, Dienst Gemeentewerken.
- Bouwtekening uit 1915, Dienst Gemeentewerken.
- Bron: Stichting Historisch Charlois
- Het personeel van de Chr. School aan de Grondherenstraat. Bron: Stichting Historisch Charlois
- Bron: Stichting Historisch Charlois
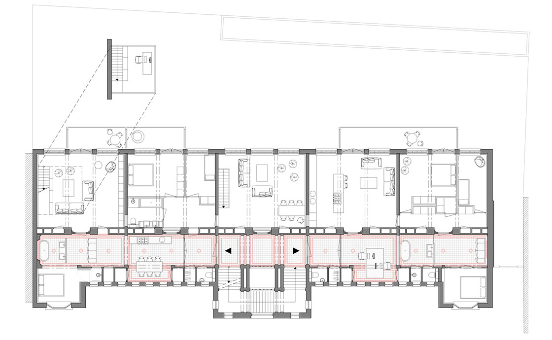
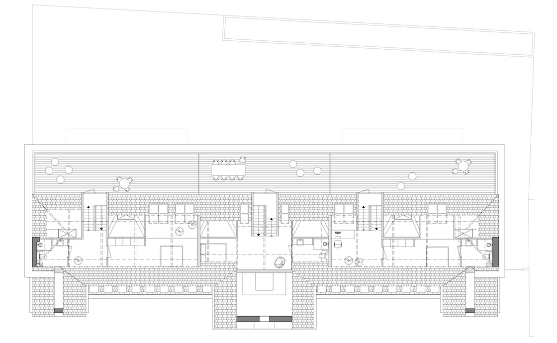
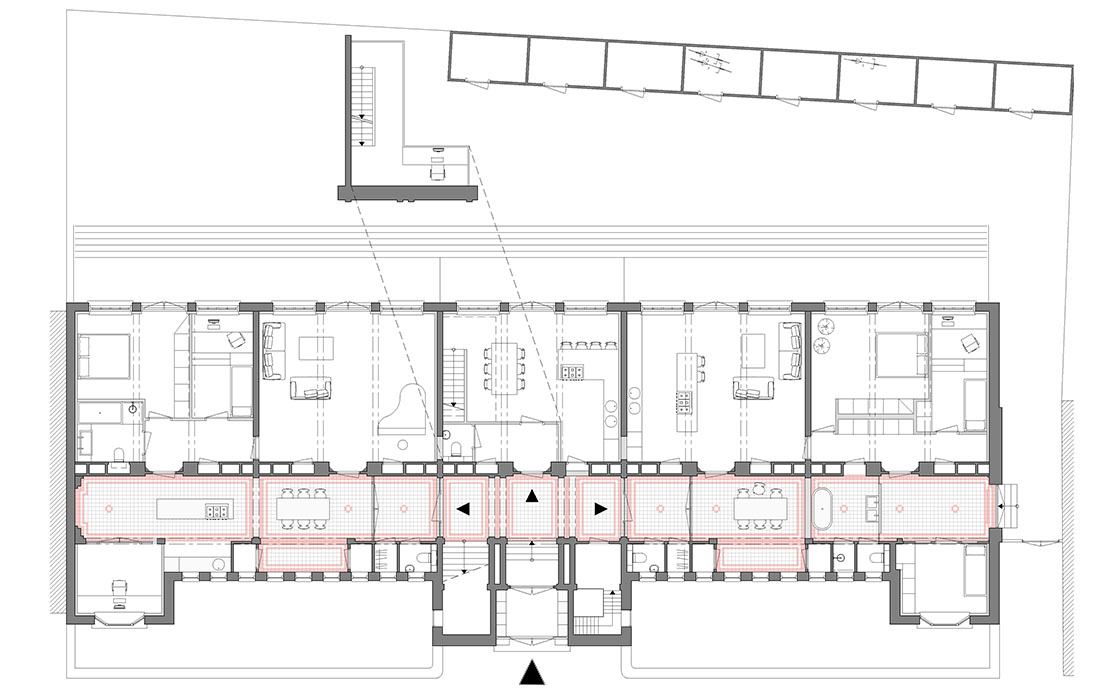
Voor de transformatie hebben we diverse opdelingen van het gebouw in wooneenheden uitgewerkt. Een belangrijk aandachtspunt was de brandveiligheid, met name omdat in het voorstel de bestaande vluchttrap gesloopt wordt die in de jaren tachtig is aangebracht en afbreuk doet aan het gebouw. Het gebouw leent zich goed voor transformatie. De drie verdiepingen tellen elk vijf schoollokalen. Het is mogelijk om acht royale appartementen te ontwikkelen die elk van elkaar verschillen.
De meeste woningen zijn gelijkvloers, bestaande uit twee naast elkaar gelegen klaslokalen met daaraan gekoppeld de authentieke, prachtig betegelde gang. De woningen hebben dankzij de grote ramen en oriëntatie een prachtige lichtinval. De kap en het dak worden toegankelijk. Hierdoor beschikken de woningen op de tweede verdieping over de ruimtes in de dakkap en een royaal dakterras. De appartementen worden ontsloten door het monumentale trappenhuis in het hart van de school.
Huidige situatie
Ontwerpvoorstel
Resultaat
Ter grondslag van de studie ligt het in kaart brengen van de bestaande toestand in 2d en het inzichtelijk maken van de transformatie. De modellen zijn door een extern bedrijf financieel begroot. De ingrepen aan het casco zijn door middel van een globale bouwkostenraming inzichtelijk gemaakt en de afbouw/inrichting is geraamd op basis van stelposten die gekoppeld zijn aan de geselecteerde referentiebeelden. De haalbaarheidsstudie is gebundeld in een communicatieboek op A3-formaat. Het eindresultaat is een heldere vertaling van de onderzoeksvraag in een verzorgd, professioneel vormgegeven document dat gecommuniceerd kan worden met derden.
De Schippersschool wordt in 2018 verkocht als klusgebouw. Het gebouw is aangewezen tot monument met bijbehorende eisen van de gemeente Rotterdam. De toekomstige bewoners van het klusgebouw dienen zelf het bestemmingsplan te wijzigen en zijn opdrachtgever voor de verbouwing. Via de zelfbouwmakelaar van de Gemeente Rotterdam kan je op hoogte worden gehouden van de ontwikkelingen.
Architectuur: Frederik Pöll Bureau voor Architectuur
Ontwerpteam: Frederik Pöll, Marcel Klaver, Maxime Meessen
Advies bouwkosten: Eversteijn Bouwconsult
Advies brandveiligheid: Bouwframe




















